ABOUT US
About us
events + REGISTRATION
events + registration
PROJECTS
PROJECTS
sponsors
sponsors
MEET THE TEAM
MEET THE team
PAST SHOWS
PAST SHOWS
IRN 601
Interior Design VI
Students are expected to synthesize knowledge gained throughout the program. Solutions must have a strong research foundation and demonstrate comprehensive and integrative design thinking.
Ala Zuckniak, Safiyah Khatri, Kristen Policano, Livia Strickland
The Pond (A2)
Alexis Gawlina
Dreamland
Annabelle Zu
Home-Work
Annabelle Zu
Balance
Balreet Dhatt
Zoidscrapers
Briana MacArthur
Compass Sectional Perspective
Chris Angoncillo, Balreet Dhatt, Jiwoo Hong
Zoid
Crystal Zhou
Work-Future
Eden Wu
Work-Future
Gabriella D'Emilio
Work-Future
Gary Han
Future Work
Hafsa Imran
Stories of Nomado
Iris Yeh, Rachel Hung, Ding Liu
Wormable (A2)
Kelsey Sassi, Aleena Shahid, Erica Fiorentino, Nour Hamdan
In Bloom
Kirsten McAuley, Aditi Thakker, Joudi Abu Marasa
The Concept Lab
Maha Asif, Isabella Bos, Shirelle Belmont, Patty Lin
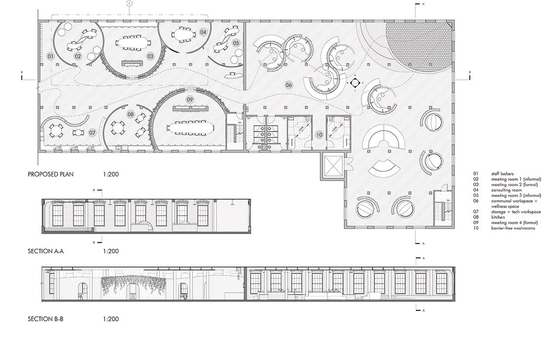
Nexus
Maya Willson
Encyclopedia
Maya Willson, Takako Daros, Hafsa Imran, Simone Pateria
Archive
Maya Willson, Takako Daros, Hafsa Imran, Simone Pateria
Nomado
Noelia Willier
Pixie Studio: A Vision of Enchanted Biophilia for the Future Workspace
Olivia Ows, Shina Zala, Aleah Como, Dominika Praszner
Treehouse (A2)
Olivia Ows, Shina Zala, Aleah Como, Dominika Praszner
Woodworks (A3)
Sun-Woo Park, Raymond Zhang, Rebecca Lee
Redesign (A3)
Takako Daros
Storyteller of 401 Richmond
Victoria Nip, Aarthi Nathan, Catharine Wang, Michelle Lee
Ectoplasm