
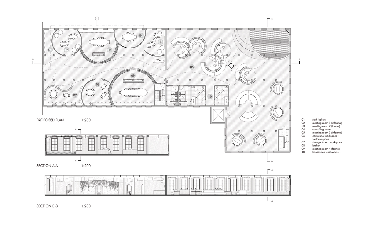
POND is a collaborative office design project inspired by the organic geometries exhibited within ponds. More specifically, features such as lily pads, pond floors, and ripples. The design of this work space is informed by realistic styles of working and the ebbs and flows people experience throughout the day as their desire to collaborate, be stimulated, and rest fluctuates. POND is an ecosystem of work shaped by the idea that the natural flow of work is organic, similar to the form of a ripple which often isn’t allowed for in traditional office spaces. On one side are the private spaces, arranged using rippled walls and partitions, visible in plan and section. On the other side is an open collaborative space shaped through the use of our modular super furniture pieces, oriented in clusters surrounding the ball pit.