
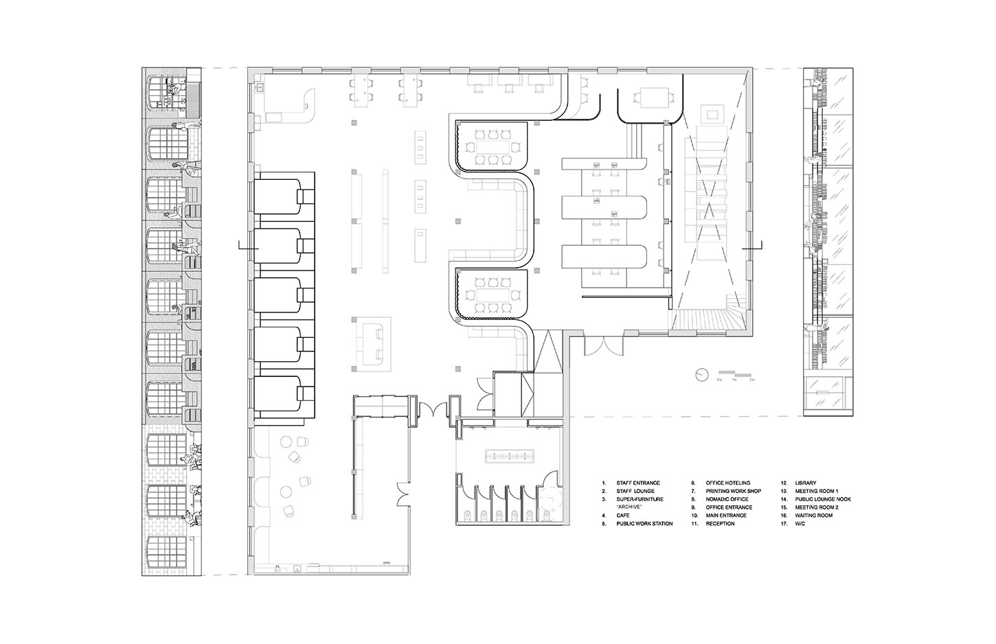
Nomado is a library, office and workshop for an independent book publishing and printing company. Deeply tied to the site of 401 Richmond and its history of tin lithography, the space fosters a new community through a sense of rehabilitation. Nomado merges nomad (wanderer) with mado (window), speaking to the relationship between new practice and existing site. Old and new come together in motion to reflect the lithographic and printing processes. The pressing motion is reflected in the floor where the various floor levels act as a zoning mechanism for reading, publishing and printing. The carved out ceiling design reinforces the uniquely arched windows, providing rhythm and directing circulation within the space. Nomado embraces past practices to illustrate a new space for storytelling above all.