
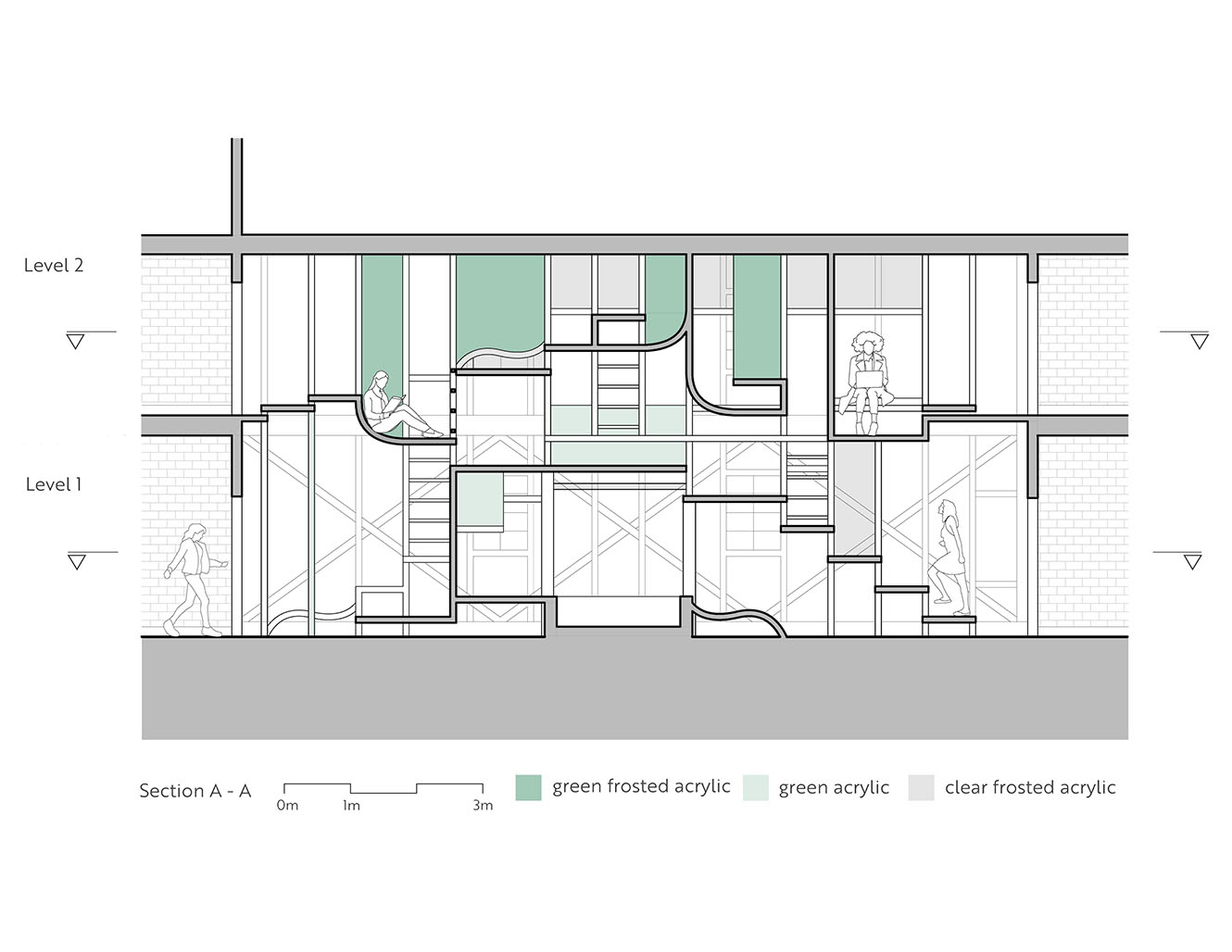
The Treehouse is a custom superfurniture that provides a playful and flexible working environment for the offices in 401 Richmond. Located in the existing glass hallway bridge, the Treehouse uses a gridded language of vertical wooden stilts and square platforms to create a multi-level forest atmosphere. Inhabitants can use the versatile wooden platforms as steps, seats, or desks, while green-tinted acrylic sheets filter natural light like foliage. The Treehouse's ground level is more public and provides open access to the Hollow, a group-working space that seats 6-8 people. In contrast, the secluded higher levels have more individual seating options with frosted acrylic panels for another layer of privacy.