
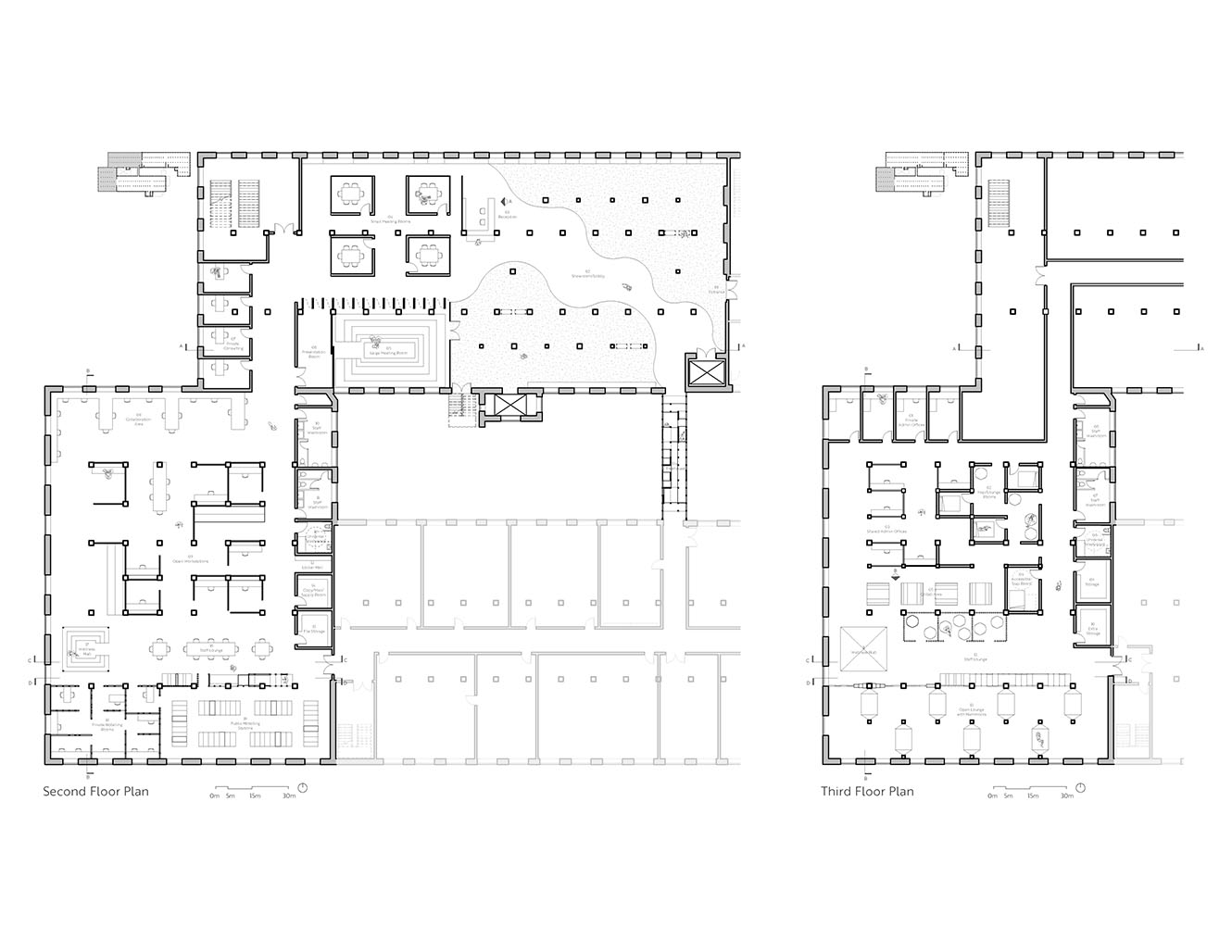
Building upon the previous project, WoodWorks is an invented furniture company known for creating the Treehouse superfurniture. WoodWorks strives to create organic and universal spaces for individuals seeking to reunite with nature by balancing work, rest, and play. The new company headquarters overtakes the second and third floors of 401 Richmond. With wood slats, fabric, mesh, and frosted/tinted acrylic, the new office design recreates the environments of different forest landscapes. For instance, the collaboration areas in the Orchard have a custom layout organized around the existing columns. In contrast, the private advising rooms can be found in the dimmer, more intimate Burrows. Finally, the Wellness Hub and Garden connect the two floors as the main areas for collaboration.