
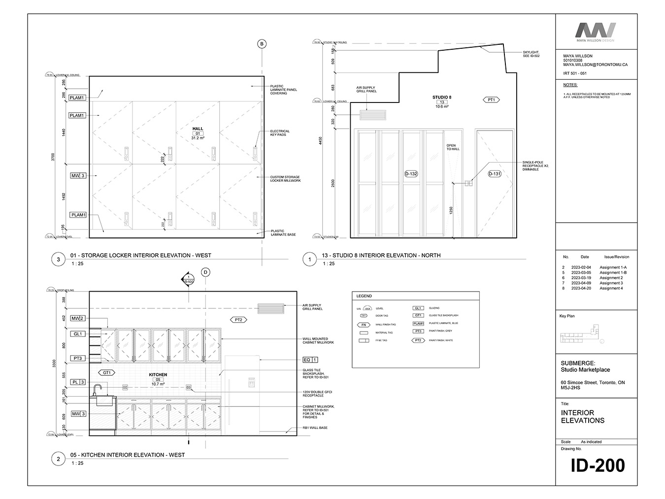
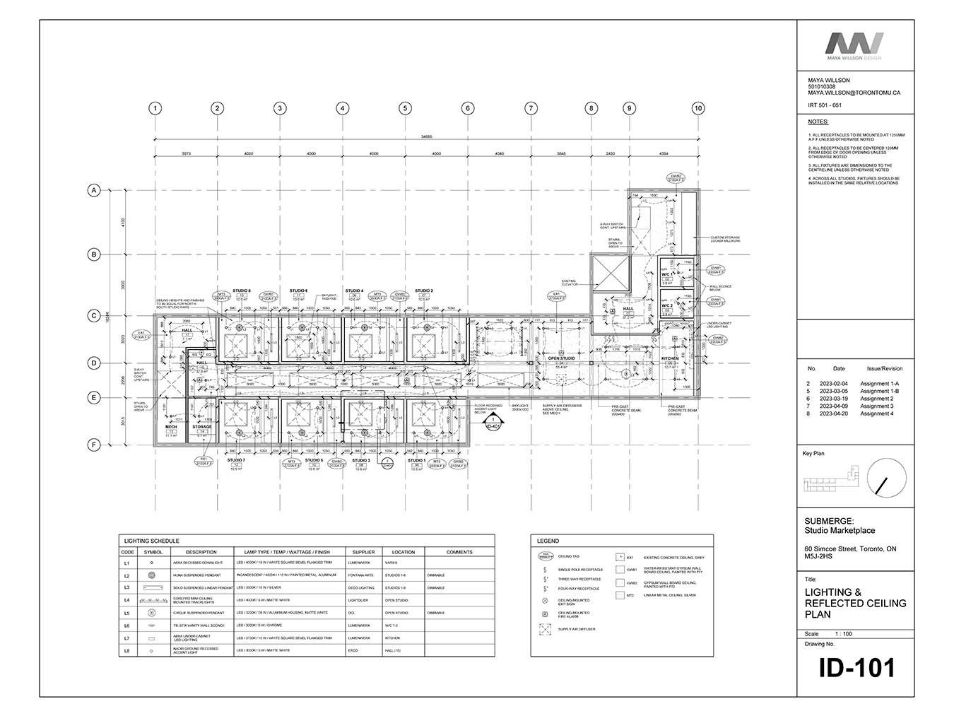
A contract document set for Submerge, a previous IRN501 project, was produced in Revit. Submerge is a studio marketplace for artists of the Toronto-based organization Akin Collective. The space features studio pods that appear to sink beneath the reflecting pool at Roy Thomson Hall. The lower level, an open studio workspace, is focused on in these drawings. The full set includes a partition plan, lighting & reflected ceiling plan, FF&E plan, finishes plan, interior elevations, details, schedules, specifications, and material board.