
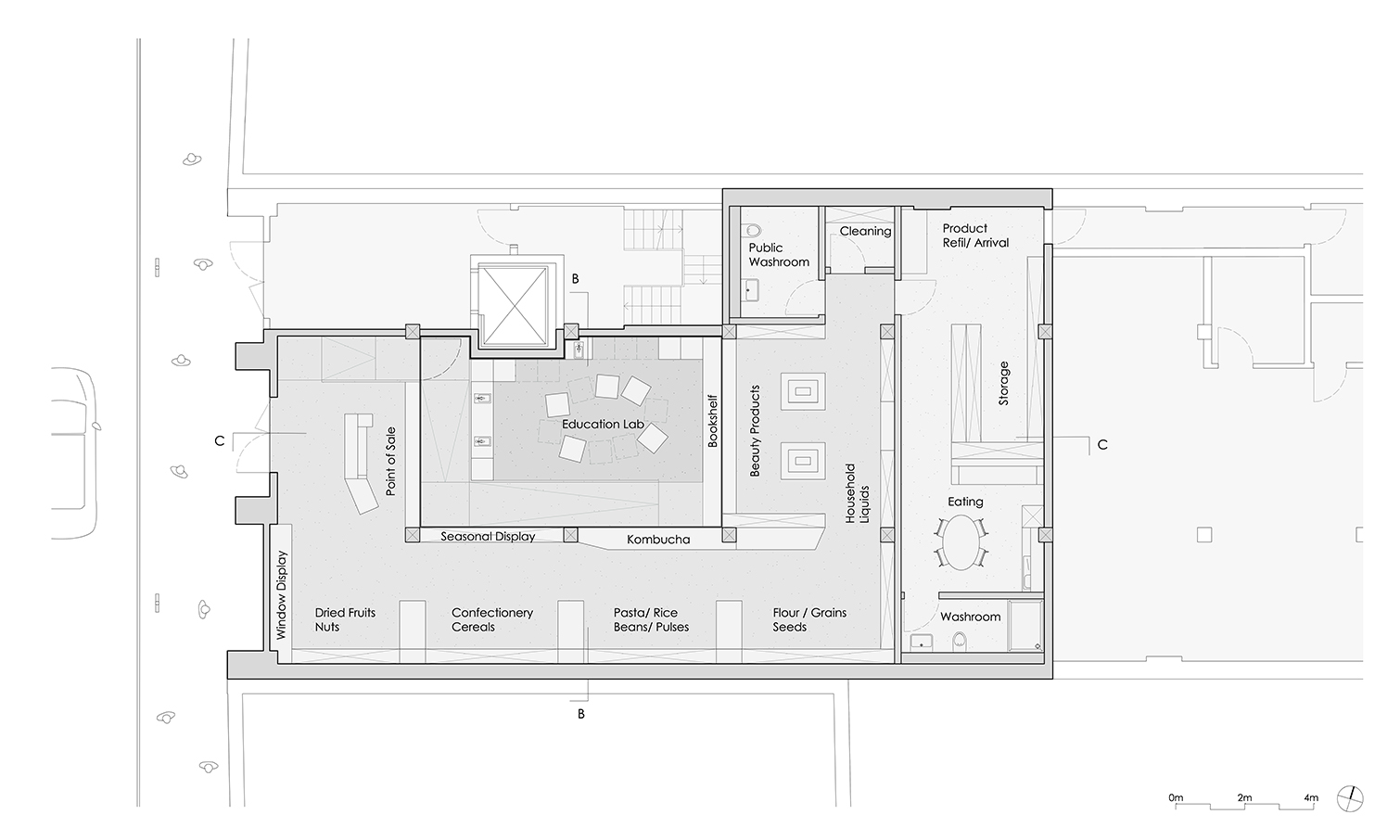
Goal of the project was to design a new store concept for the brand "The source Bulk Food" on the location of 577 Yonge Street in Toronto. My leading question was why people would go in this store rather than one of the other in Toronto. Therefore, my focus was on one of their key mission; the education. The core of the store is the lowered education lab for classes for more sustainability and knowledge around the bulk food. All design decisions are made with this main aspect but always to serve and show the charm to the heritage building.