
"The Peach Blossom Land was a fable written by Tao Yuanming in 421 CE about a chance discovery of an ethereal utopia where the people lead an ideal existence in harmony with nature for centuries, unaware of the outside world.
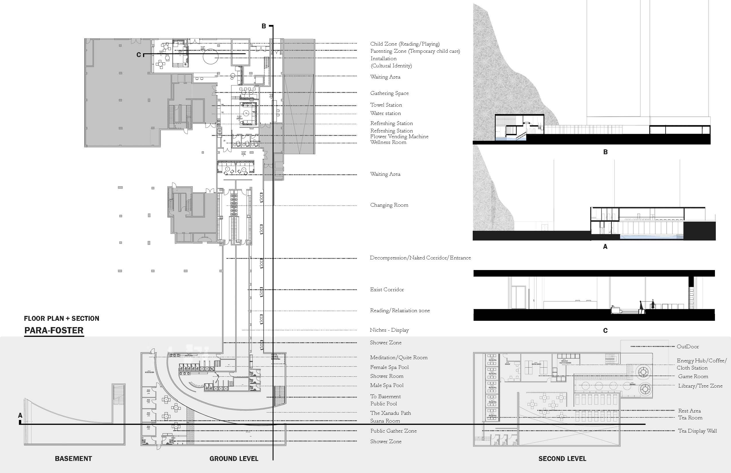
Para-Foster tries to create a Xanadu – meaning an idyllic or scenic place – for residents and visitors, facilitating unique explorative experiences within the space, The Spa centre connected to the building provides visitor and residents a refreshing experience and stress relieving environment while soaking in a space where expresses a strong cultural representation.