
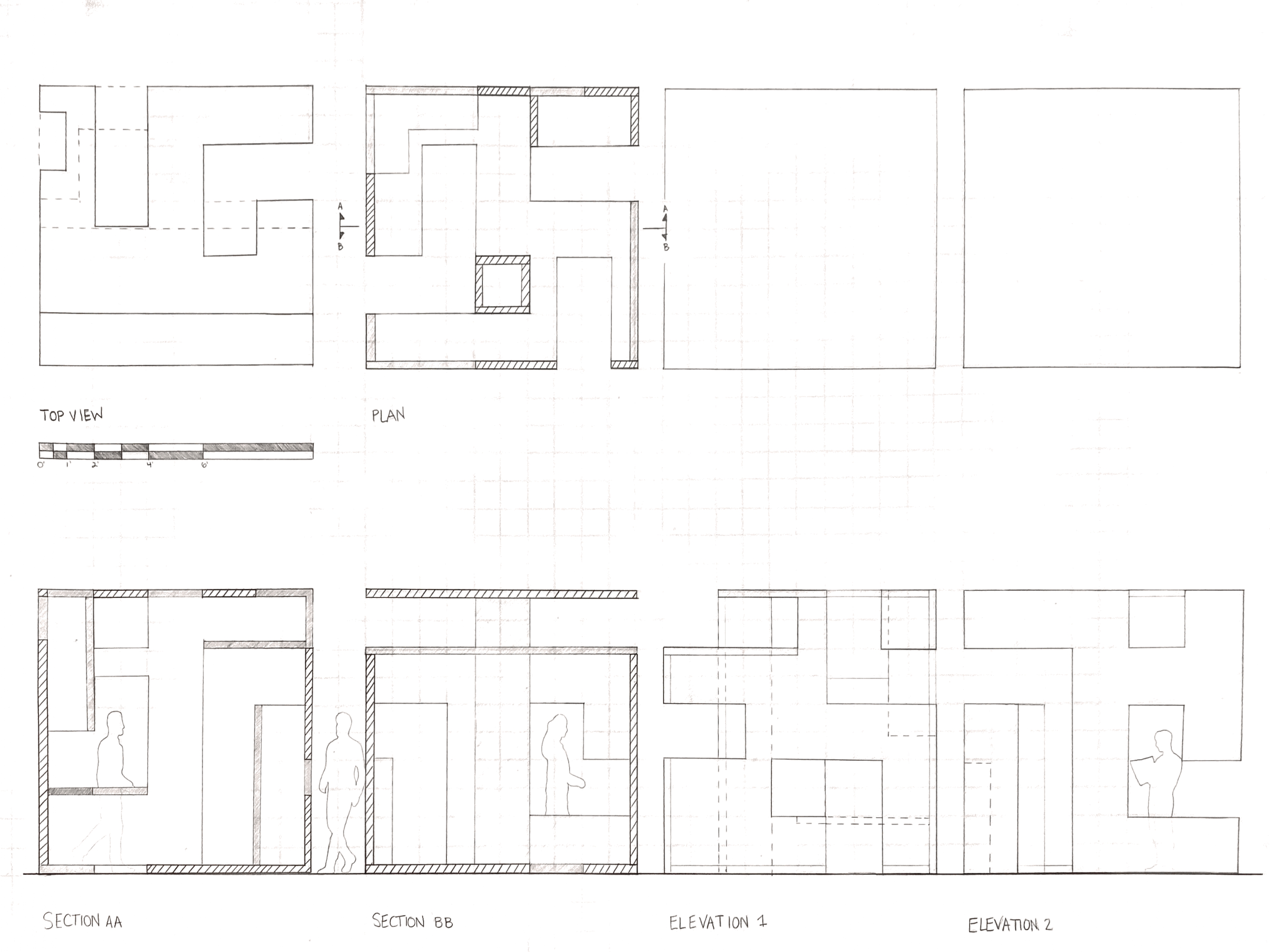
Creating a welcoming space for people to enjoy and relax in after taking a long hike. This space would be on top of a mountain and be used to sit and enjoy a warm drink or take a break. The main concept of this space would be that it is able to be placed on any plane or edge and still is a functional space with somewhere to sit. As well, this space is meant to flow organically with the nature surrounding it.