
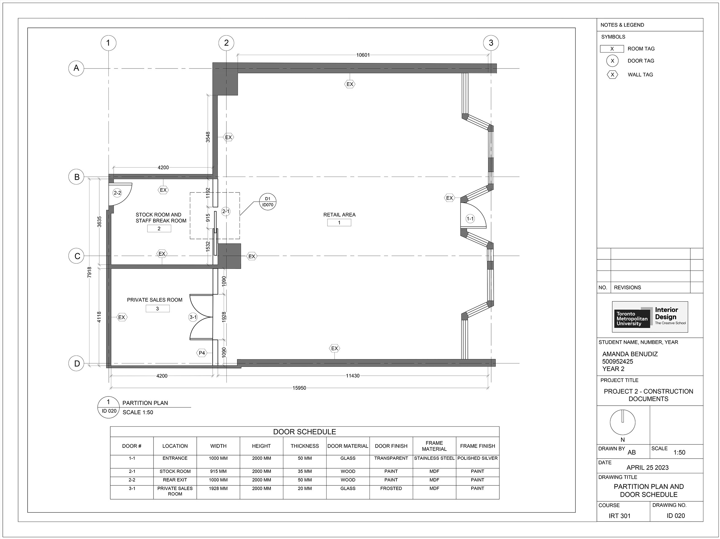
Located in the heart of Yorkville in Toronto, 846-848 Yonge Street is currently a vacant retail space but soon to be Tiffany & Co. Store. The main retail area of this space emphasizes the use of artificial light to both illuminate the merchandise and make up for the lack of natural light. Arranged in a grid format, pot lights brighten the space and are intentionally placed over the merchandise, allowing shoppers to see the finest details while shopping. The interior includes materials such as white marble, glass, stainless steel, and the signature Tiffany blue.