
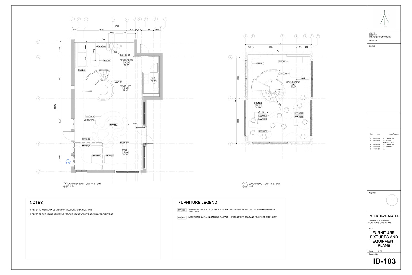
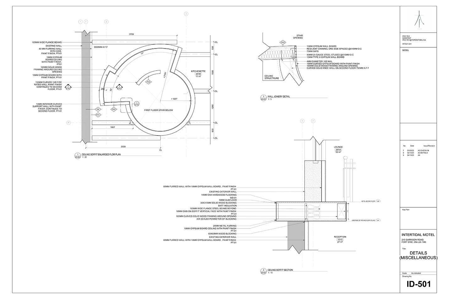
The lobby of Intertidal Motel features custom furniture and a spiral staircase that highlight the gentle fluidity of Fort Erie's waterfront. The existing first floor lobby is extended to the second floor above, both fitted with kitchenettes and seating for working and reception. The central staircase is a feature in the space, creating continuity between more public reception on the first floor and quieter second floor lounge for residents on the second floor. The spaces use warm oak finishes paired with cool tone paints and textiles to reflect the landscape of a waterfront.