
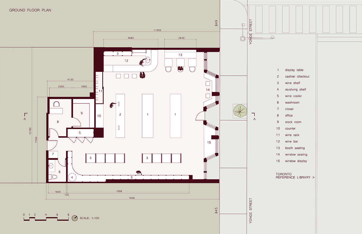
Grand Cata is a wine store and bar experience, with a focus on Latin American wines and foods. The proposed design for a retail space at 846-848 Yonge Street encompasses the idea of a “wine library” to mirror the Toronto Reference Library across the street. With product-filled shelves, a revolving wine display, and bar and booth seating, the store is a library of knowledge in Latin American tastes. Dark red-stained wood is reminiscent of red wine, while patterned tiles and chevron-patterned wooden panels are lightly inspired by Latin American art.