
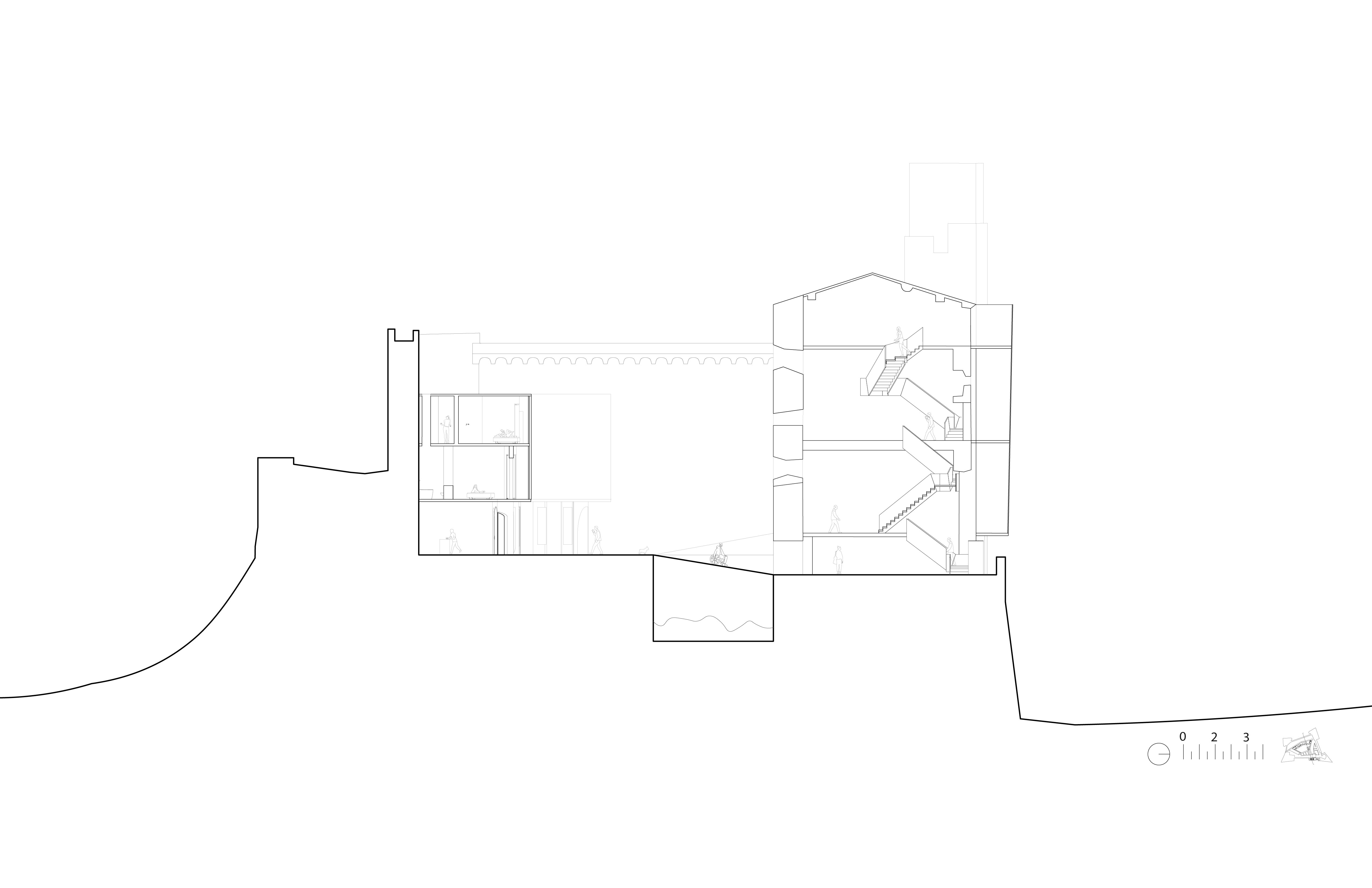
The Fortification will rebuild the community by reconnecting the fortezza with the rest of Cortona physically and spiritually, revitalizing the soul of the town. To achieve this, the fortezza will feature self-sufficient mixed-use co-living spaces that feature an academy along with commercial and cultural services within the fortress walls.