
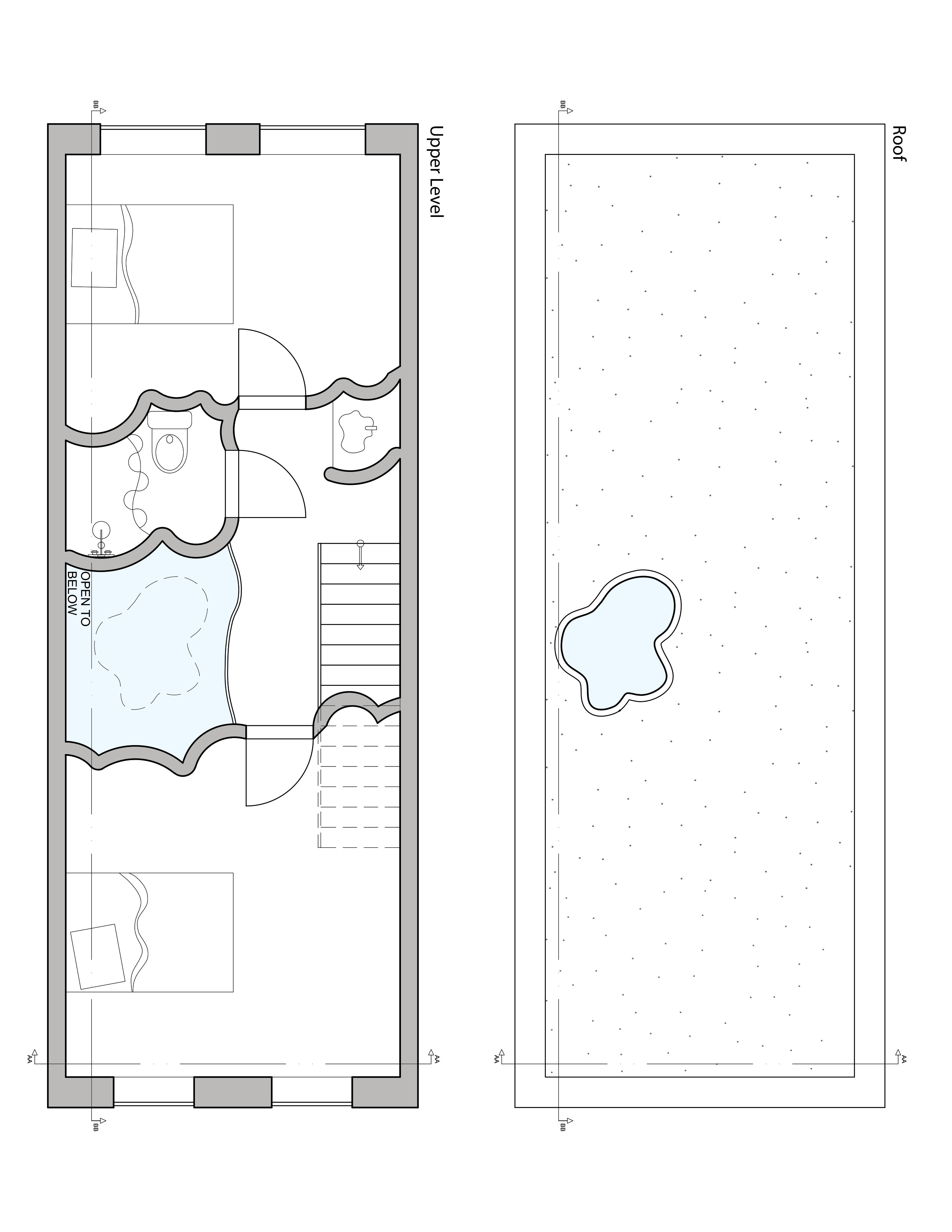
This is one unit in a series of townhomes designed for young adults who have aged out of foster care, with each unit housing two people. The unit aims to create a comforting atmosphere, with large cloud-like walls throughout the entire space. The skylight and openings line up to let light permeate the space, and connect the communal spaces together to create an open atmosphere. The aim is to make the visitor feel as though they are living and walking high up in the clouds, in a space free of worry.