
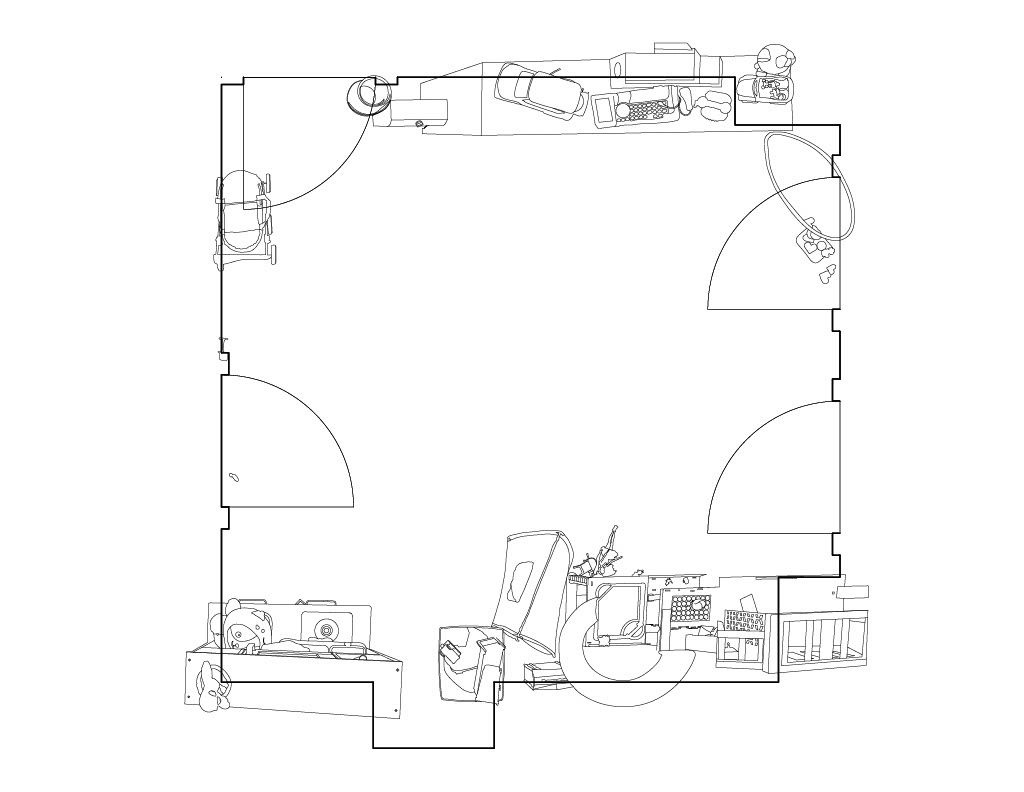
This marks our fourth assignment, which builds upon the progress achieved in our previous three assignments. Throughout assignments 1 to 3, I opted to focus on my sister's playroom, capturing its layout via a series of overhead photographs presented in collage format. Subsequently, I utilized AutoCAD to create a detailed floor plan and elevations that mirrored the aforementioned collage. Moving on to assignment 4, I carefully traced all relevant room details based on the original collage.