
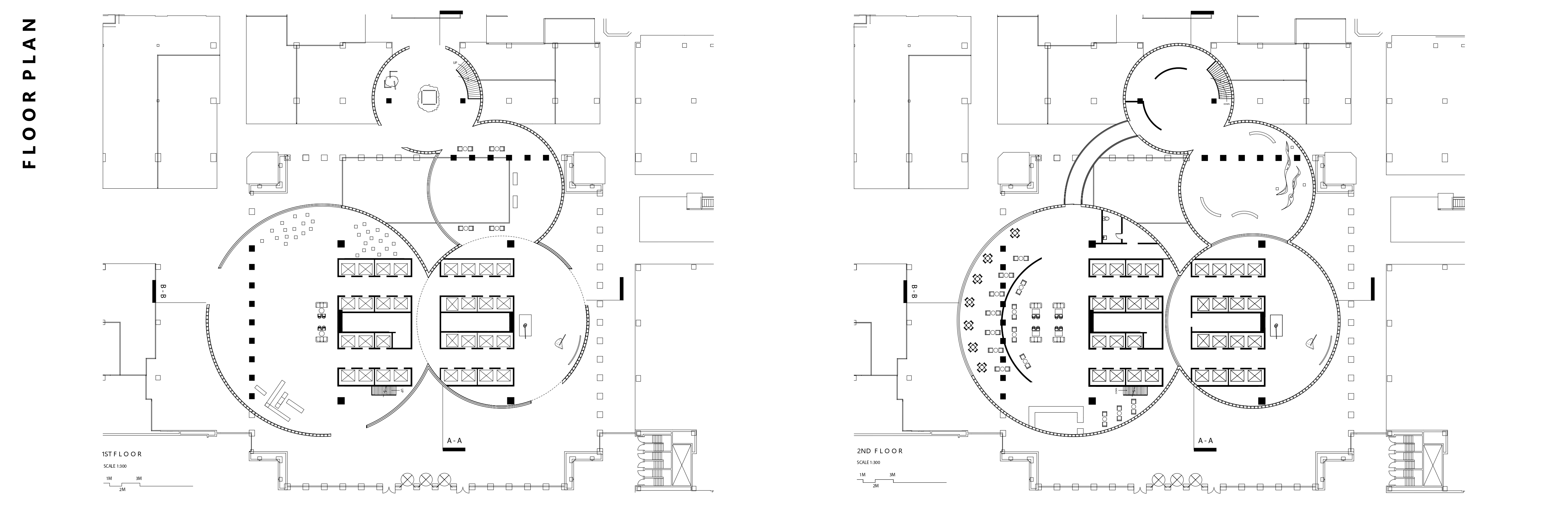
Inspired by the soundscape of the water droplet, I wanted to accomplish a silent gallery within a busy pathway in a business tower allowing office workers pause for a moment. Each bubble-like space plays with sound circulation letting people move from a noisy space to gradually less noisy as the space gets smaller. The whitenoise of people’s moving footsteps echoing around the hollow and massive space of the gallery directs a tranquil and meditative effect onto the gallery space when people look around at artworks.